ID CP2355502

Casa individuala 5 camere – teren 320 mp- Sura Mica – Sibiu

ID CP2355502

190,000 € TVA inclus

Casă / Vilă cu 5 camere de vânzare
Sura Mica
120 mp
2025

Casa individuala 5 camere – Teren 320 mp- Sura Mica – Sibiu

Casă individuală situată pe un teren de 320 mp, într-un cartier liniștit de locuințe din Șura Mică, ideală pentru cei care își doresc un spațiu bine gândit și o curte generoasă.

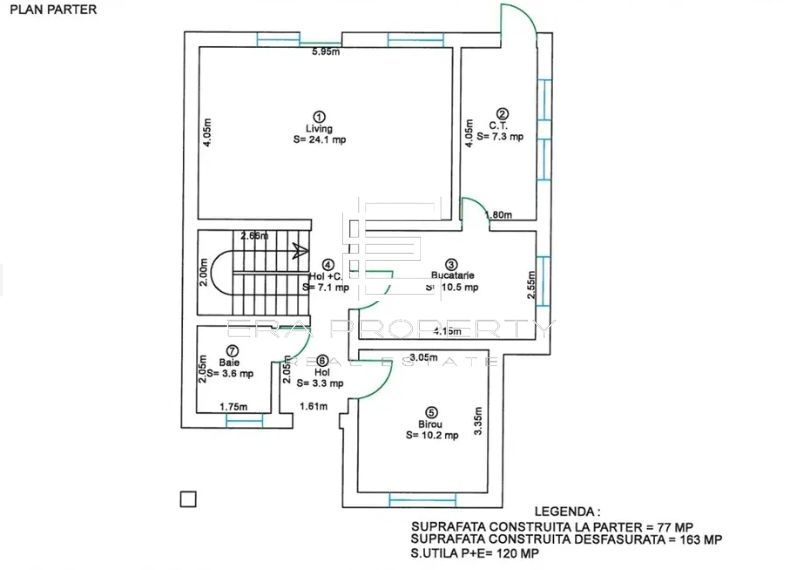
-Locuința dispune de 118 mp utili, distribuiți practic pe două niveluri:

-Compartimentare eficienta :

*Parter: hol la intrare cu spațiu generos pentru depozitare; baie; cameră de aproximativ 11 mp, perfectă pentru birou sau dormitor suplimentar; bucătărie care poate rămâne deschisă ori se poate închide, în funcție de preferințe; cămară / spațiu tehnic; living spațios de 24 mp, cu zonă dedicată pentru dining și acces direct în curtea liberă de ~320 mp, dispusă în fața, spatele și lateralele casei

*Etaj: trei dormitoare luminoase, dormitor matrimonial cu baie proprie, baie principală, pod izolat pentru depozitare.

Stadiu și dotări:

Interiorul se predă la stadiul de alb: șape turnate, instalație de încălzire în pardoseală atât la parter, cât și la etaj; ferestre Salamander cu geam tripan;

Exteriorul finalizat complet: termoizolație din polistiren de 15 cm; acoperiș cu țiglă Bramac; gard, poartă și pavaj finalizate; curte mare, cu loc pentru 2 autoturisme, zonă de relaxare și spațiu dedicat pentru barbecue.

Localizare

Casa este amplasată în Șura Mică, într-o zonă rezidențială, ferită de trafic, ceea ce o face ideală pentru o familie care caută liniște, confort și acces rapid către Sibiu.

Preț: 190.000 EUR – casă la alb în interior și la cheie la exterior

***Fotografiile sunt cu titlu informativ și provin de la o altă casă similară din cadrul aceluiași proiect.

Citește mai mult

  • Număr camere
    5
  • Dormitoare
    4
  • Număr bucătării
    1
  • Număr băi
    3
  • Geam la baie
    Da
  • Număr terase
    1
  • Număr locuri parcare
    2
  • Disponibilitate
    Imediat
  • Tip casă
    Individual
  • Stare interior
    Finisat clasic
  • Anul finisării
    2025
  • Suprafață utilă
    120 mp
  • Suprafață construită
    144 mp
  • Suprafață teren
    320 mp
  • Suprafață curte liberă
    260 mp
  • Deschidere
    15 m
  • Acoperiș
    Țiglă
  • Stadiu construcție
    În construcție
  • An construcție
    2025
  • Construcție nouă
    Da
  • De la dezvoltator
    Da
  • Tip construcție
    Cărămidă
  • Număr etaje clădire
    1
  • Are pod
    Da

Facilități

Apă
Calorifere
Canalizare
CATV
Centrală proprie
Curent
Gaz
Iluminat stradal
Încălzire prin pardoseală
Internet
Mijloace de transport în comun
Străzi asfaltate
Telefon
Vedere spre munte
Anamaria Vulcu - ERA Property
Anamaria Vulcu
Broker imobiliar

0772298572


Solicită chiar acum o vizionare
Nume
Telefon
Email
Sună acum Solicită vizionare
Necesare:

Site-ul nu poate funcționa corect fără aceste cookie-uri. Vezi cookie-urile

Statistică:

Strângem statistici anonime despre voi, vizitatorii unici, pentru a vă îmbunătăți experiența dumneavoastră. Vezi cookie-urile

Marketing:

Pentru a ne promova mai eficient serviciile noastre, folosim cookies pentru a vă identifica și a vă oferi proprietăți și servicii personalizate. Vezi cookie-urile

Acest site folosește cookies, află detalii. Alege ce tipuri de cookies dorești să permitem: