ID CP2331412

Casă individuală , 5 camere , teren 487 mp, Cristian-Sibiu

ID CP2331412

245,000 €

Casă / Vilă cu 5 camere de vânzare
Cristian
120 mp
2025

Casă individuală, 5 camere | Cristian, zona rezidențială

Comision 0% la cumpărător.

Proprietate ideală pentru o familie care caută eficiență spațială și o zonă liniștită, ferită de agitația orașului, dar cu acces rapid către Sibiu. Casa se predă la stadiul Alb la interior (oferind libertate în alegerea finisajelor) și Cheie la exterior.

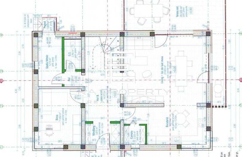
-Suprafață utilă: 147 mp

-Suprafață teren: 487mp (curte liberă generoasă)

-Regim înălțime: P+E

Compartimentare funcțională

Parter (Zonă de zi & Utilitate): hol de acces, living cu bucătărie deschisă (posibilitate de închidere separată, în funcție de preferințe); cămară (spațiu de depozitare adiacent bucătăriei); birou / dormitor de parter (ideal pentru lucru de acasă sau oaspeți); baie; spațiu tehnic dedicat.

Terasă acoperită: 28 mp

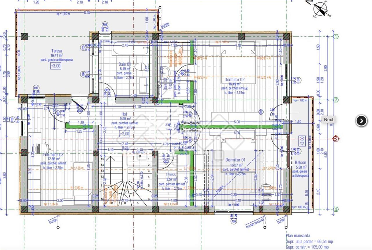
Etaj (Zonă de noapte): hol de distribuție; dormitor matrimonial cu baie proprie; 2 dormitoare secundare; baie principală; dressing dedicat; balcon (5.30 mp) + terasă exterioară (16.41 mp).

Avantaje majore

Configurație flexibilă: Dormitorul de la parter și bucătăria opțional închisă rezolvă marile probleme ale caselor moderne.

Spații exterioare generoase: Terasele însumează peste 44 mp de spațiu utilizabil în aer liber.

Confort termic: Încălzirea în pardoseală elimină caloriferele inestetice și reduce costurile de exploatare.

Locație: Zonă exclusivă de case, fără riscul de a te trezi cu un bloc la fereastră.

Preț: 250.000 EUR

Citește mai mult

  • Număr camere
    5
  • Dormitoare
    3
  • Număr bucătării
    1
  • Număr băi
    3
  • Geam la baie
    Da
  • Număr balcoane
    1
  • Număr terase
    1
  • Număr locuri parcare
    2
  • Disponibilitate
    Imediat
  • Tip casă
    Individual
  • Stare interior
    Semifinisat
  • Anul finisării
    2025
  • Suprafață utilă
    120 mp
  • Suprafață construită
    144 mp
  • Suprafață teren
    487 mp
  • Suprafață terasă
    2 mp
  • Deschidere
    15 m
  • Stadiu construcție
    În construcție
  • An construcție
    2025
  • Construcție nouă
    Da
  • De la dezvoltator
    Da
  • Tip construcție
    Cărămidă
  • Număr etaje clădire
    1
  • Are pod
    Da

Facilități

Apă
Canalizare
CATV
Curent
Gaz
Iluminat stradal
Internet
Mijloace de transport în comun
Străzi asfaltate
Telefon
Anamaria Vulcu - ERA Property
Anamaria Vulcu
Broker imobiliar

0772298572


Solicită chiar acum o vizionare
Nume
Telefon
Email
Sună acum Solicită vizionare
Necesare:

Site-ul nu poate funcționa corect fără aceste cookie-uri. Vezi cookie-urile

Statistică:

Strângem statistici anonime despre voi, vizitatorii unici, pentru a vă îmbunătăți experiența dumneavoastră. Vezi cookie-urile

Marketing:

Pentru a ne promova mai eficient serviciile noastre, folosim cookies pentru a vă identifica și a vă oferi proprietăți și servicii personalizate. Vezi cookie-urile

Acest site folosește cookies, află detalii. Alege ce tipuri de cookies dorești să permitem: