ID CP2605915

Duplex 4 camere- 120 mp- teren 250 mp- Sura Mica

ID CP2605915

129,700 € TVA inclus

Casă / Vilă cu 4 camere de vânzare
Sura Mica
120 mp
2025

Duplex elegant cu 4 camere, curte și loc de parcare – design modern | Șura Mică

Situat într-un ansamblu rezidențial privat din Șura Mică, această proprietate oferă un cadru ideal pentru familii – zonă liniștită, acces facil către oraș, școli, magazine și mijloace de transport în comun.

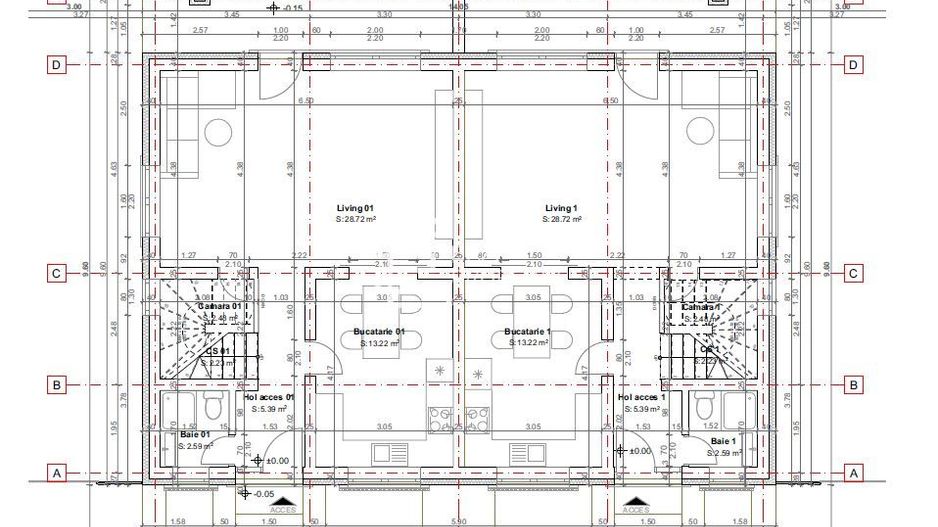
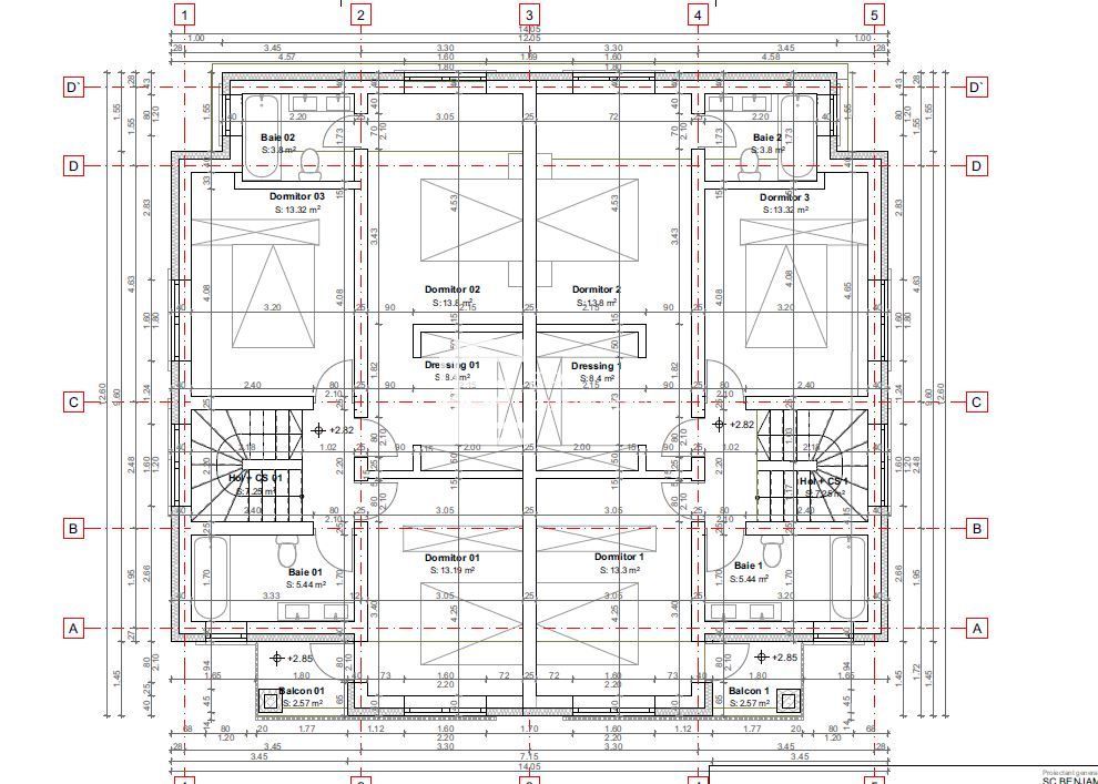
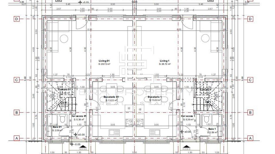
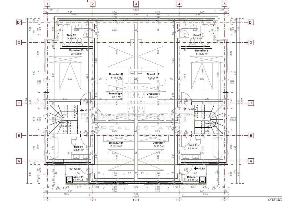
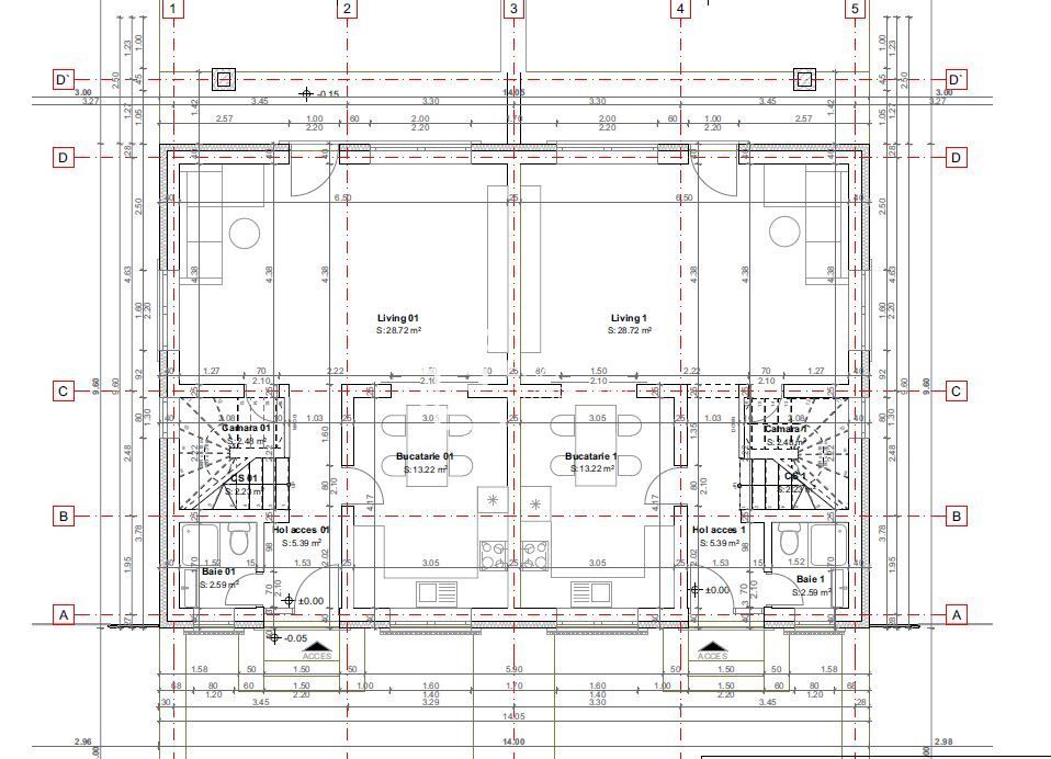
Regim de înălțime: Parter + Etaj

Suprafață utilă totală: ~120 mp

Teren liber (curte): ~150 mp

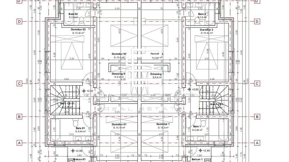
Compartimentare: living generos: 28,72 mp; bucătărie închisă: 13,22 mp; cămară: 2,45 mp; 3 dormitoare; dressing; 3 băi; balcon: 5,25 mp.

Facilități:

✅ Curte proprie

✅ Loc de parcare în fața casei

✅ Finisaje exterioare premium

✅ Predare la cheie exterior / la roșu interior

🔧 Specificații tehnice

Construcție 2025 – beton armat + cărămidă

Tâmplărie PVC

Izolație exterioară cu eficiență energetică ridicată

📆 Predare estimată: anul 2026

Preț: 129700 € (TVA 21% inclus)

📞 Contactează-ne acum pentru mai multe detalii, planuri sau programarea unei vizionări!

Citește mai mult

  • Număr camere
    4
  • Dormitoare
    3
  • Număr bucătării
    1
  • Număr băi
    3
  • Geam la baie
    Da
  • Număr balcoane
    1
  • Număr locuri parcare
    2
  • Disponibilitate
    Imediat
  • Tip casă
    Duplex
  • Stare interior
    Semifinisat
  • Anul finisării
    2025
  • Suprafață utilă
    120 mp
  • Suprafață teren
    250 mp
  • Suprafață curte liberă
    150 mp
  • Acoperiș
    Țiglă
  • Stadiu construcție
    În construcție
  • An construcție
    2025
  • Construcție nouă
    Da
  • Tip construcție
    Cărămidă
  • Număr etaje clădire
    1

Facilități

Apă
Bucătărie închisă
Canalizare
CATV
Curent
Dressing
Gaz
Iluminat stradal
Internet
Mijloace de transport în comun
Străzi asfaltate
Telefon
Anamaria Vulcu - ERA Property
Anamaria Vulcu
Broker imobiliar

0772298572


Solicită chiar acum o vizionare
Nume
Telefon
Email
Sună acum Solicită vizionare
Necesare:

Site-ul nu poate funcționa corect fără aceste cookie-uri. Vezi cookie-urile

Statistică:

Strângem statistici anonime despre voi, vizitatorii unici, pentru a vă îmbunătăți experiența dumneavoastră. Vezi cookie-urile

Marketing:

Pentru a ne promova mai eficient serviciile noastre, folosim cookies pentru a vă identifica și a vă oferi proprietăți și servicii personalizate. Vezi cookie-urile

Acest site folosește cookies, află detalii. Alege ce tipuri de cookies dorești să permitem: