ID CP3041764

Apartament 1 cameră la cheie cu grădină proprie | Șelimbăr, zona Brana

ID CP3041764

108,500 €

Apartament cu 1 camere de vânzare
Selimbar
41 mp
2024

Apartament 1 camera la cheie cu gradinna zona Brana, Selimbar

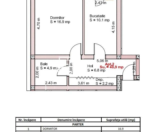
Vă propunem spre vânzare un apartament cu 1 cameră, la cheie, situat la parterul unui imobil nou din Șelimbăr, zona Brana, o zonă tot mai căutată datorită accesului facil către Sibiu.

Apartamentul are o suprafață utilă de 40,9 mp, o logie de 7,3 mp și beneficiază de o grădină proprie de 48 mp, ideală pentru relaxare, amenajarea unei terase sau a unui spațiu verde personal.

Compartimentarea este decomandată și eficientă: hol de acces, bucătărie separată, cameră generoasă, baie și spațiu de depozitare.

Locuința se predă finisată la cheie, este intabulată, dispune de încălzire în pardoseală și are loc de parcare inclus.

Este o proprietate potrivită atât pentru locuință personală, cât și pentru investiție, datorită compartimentării practice, grădinii proprii și poziționării într-o zonă în dezvoltare.

Te așteptăm la vizionare!

Citește mai mult

  • Tip apartament
    Apartament
  • Compartimentare
    Decomandat
  • Număr camere
    1
  • Dormitoare
    1
  • Număr bucătării
    1
  • Număr băi
    1
  • Etaj
    Parter
  • Suprafață utilă
    41 mp
  • Suprafață curte
    48 mp
  • Disponibilitate
    Imediat
  • Confort
    1
  • Stare interior
    Finisat clasic
  • Anul finisării
    2025
  • Număr balcoane
    1
  • Număr locuri parcare
    1
  • Imobil
    Bloc de apart.
  • Stadiu construcție
    Finalizată
  • An construcție
    2024
  • Construcție nouă
    Da
  • De la dezvoltator
    Da
  • Tip construcție
    Cărămidă
  • Număr etaje clădire
    3

Facilități

Apă
Bucătărie închisă
Canalizare
CATV
Centrală proprie
Curent
Faianță
Gaz
Geamuri tripan
Grădină proprie
Gresie
Iluminat stradal
Încălzire prin pardoseală
Internet
Izolație exterioară
Mijloace de transport în comun
Parchet
Străzi asfaltate
Telefon
Anamaria Vulcu - ERA Property
Anamaria Vulcu
Broker imobiliar

0772298572


Solicită chiar acum o vizionare
Nume
Telefon
Email
Sună acum Solicită vizionare
Necesare:

Site-ul nu poate funcționa corect fără aceste cookie-uri. Vezi cookie-urile

Statistică:

Strângem statistici anonime despre voi, vizitatorii unici, pentru a vă îmbunătăți experiența dumneavoastră. Vezi cookie-urile

Marketing:

Pentru a ne promova mai eficient serviciile noastre, folosim cookies pentru a vă identifica și a vă oferi proprietăți și servicii personalizate. Vezi cookie-urile

Acest site folosește cookies, află detalii. Alege ce tipuri de cookies dorești să permitem: