ID CP2567602

Penthouse 4 camere, mobilat și utilat, intabulat – DaVinci Homes Cristian

ID CP2567602

190,500 € TVA inclus

Apartament cu 4 camere de vânzare
Cristian
103.55 mp
2023

103,55 mp utili, logie 7,97 mp, orientare sudică și vedere către munți

| 𝐂𝐨𝐦𝐢𝐬𝐢𝐨𝐧 𝟎% |

Vă propunem spre vânzare un penthouse intabulat, cu 4 camere, situat în ansamblul rezidențial DaVinci Homes Cristian, într-o zonă aerisită, cu acces facil către Sibiu, Aeroport, Zona Industrială Vest și principalele artere de circulație.

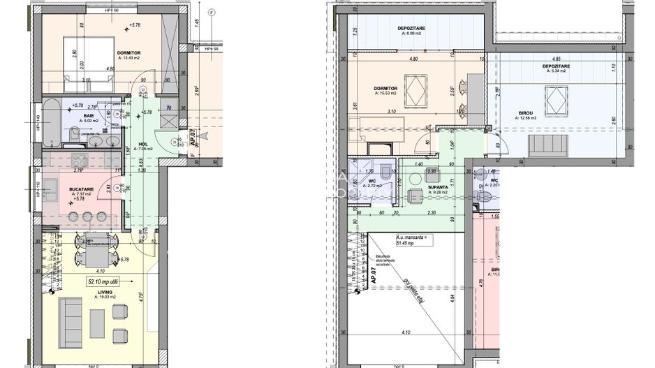
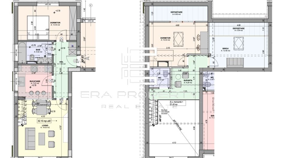
Locuința are o suprafață utilă de 𝟏𝟎𝟑,𝟓𝟓 𝐦𝐩 și beneficiază de o 𝐥𝐨𝐠𝐢𝐞 𝐝𝐞 𝟕,𝟗𝟕 𝐦𝐩 cu sticlă securizată și prevăzută cu sistem de captare a apelor. Apartamentul se predă finisat la cheie, mobilat și utilat, fiind potrivit atât pentru locuință proprie, cât și pentru investiție.

𝐂𝐨𝐦𝐩𝐚𝐫𝐭𝐢𝐦𝐞𝐧𝐭𝐚𝐫𝐞:

𝐏𝐫𝐢𝐦𝐮𝐥 𝐧𝐢𝐯𝐞𝐥: hol de acces, living luminos cu înălțime de 5,6 m, bucătărie separată, dormitor, grup sanitar și logie.

𝐀𝐥 𝐝𝐨𝐢𝐥𝐞𝐚 𝐧𝐢𝐯𝐞𝐥: două dormitoare, spațiu pentru birou/depozitare și grup sanitar.

𝐃𝐨𝐭𝐚𝐫𝐢 𝐬𝐢 𝐚𝐯𝐚𝐧𝐭𝐚𝐣𝐞:

imobil intabulat

etaj 2/2

living cu înălțime de 5,6 m

încălzire în pardoseală

2 băi

loc de parcare inclus

orientare sudică

multă lumină naturală

vedere către munți

jaluzele electrice

logie cu sticlă securizată

izolație cu vată bazaltică

granit pe casa scării

predare la cheie, mobilat și utilat

𝐀𝐯𝐚𝐧𝐭𝐚𝐣𝐞 𝐚𝐧𝐬𝐚𝐦𝐛𝐥𝐮 𝐃𝐚𝐕𝐢𝐧𝐜𝐢 𝐇𝐨𝐦𝐞𝐬

Ansamblul se remarcă printr-o ocupare eficientă a terenului, cu 45% spații verzi, locuri de joacă amenajate, arhitectură modernă și finisaje exterioare cu larice siberian și piatră naturală.

Accesul este facil, lipsit de ambuteiaje majore, ansamblul beneficiind de 4 căi de acces către Sibiu și zonele de interes.

Locuința poate fi achiziționată și prin credit bancar, iar prețul rămâne același indiferent de metoda de plată.

Citește mai mult

  • Tip apartament
    Apartament
  • Compartimentare
    Decomandat
  • Număr camere
    4
  • Dormitoare
    3
  • Număr bucătării
    1
  • Număr băi
    2
  • Geam la baie
    Da
  • Etaj
    2
  • Suprafață utilă
    103.55 mp
  • Suprafață construită
    110 mp
  • Disponibilitate
    Imediat
  • Orientare
    Sud-Est
  • Confort
    1
  • Stare interior
    Finisat modern
  • Anul finisării
    2023
  • Număr terase
    1
  • Număr locuri parcare
    1
  • Imobil
    Bloc de apart.
  • Stadiu construcție
    Finalizată
  • An construcție
    2023
  • Construcție nouă
    Da
  • De la dezvoltator
    Da
  • Tip construcție
    Cărămidă
  • Număr etaje clădire
    2
  • Are pod
    Da

Facilități

Apă
Bucătărie închisă
Canalizare
CATV
Centrală proprie
Curent
Gaz
Geamuri tripan
Iluminat stradal
Încălzire prin pardoseală
Internet
Izolație exterioară
Mijloace de transport în comun
Rulouri / obloane aluminiu
Rulouri / obloane electrice
Străzi asfaltate
Telefon
Vedere panoramică
Vedere spre munte
Vopsea lavabilă
Anamaria Vulcu - ERA Property
Anamaria Vulcu
Broker imobiliar

0772298572


Solicită chiar acum o vizionare
Nume
Telefon
Email
Sună acum Solicită vizionare
Necesare:

Site-ul nu poate funcționa corect fără aceste cookie-uri. Vezi cookie-urile

Statistică:

Strângem statistici anonime despre voi, vizitatorii unici, pentru a vă îmbunătăți experiența dumneavoastră. Vezi cookie-urile

Marketing:

Pentru a ne promova mai eficient serviciile noastre, folosim cookies pentru a vă identifica și a vă oferi proprietăți și servicii personalizate. Vezi cookie-urile

Acest site folosește cookies, află detalii. Alege ce tipuri de cookies dorești să permitem: