ID CP2574375

Apartament 4 camere /gradina 200 mp/finisaje premium/Cartierul Arhitectilor

ID CP2574375

204,000 € + 21% TVA

Apartament cu 4 camere de vânzare
Arhitectilor - Calea Cisnadiei, Sibiu
115 mp
2025

Apartament 4 camere /gradina 200 mp/finisaje premium/ Cartierul Arhitectilor

*** COMISION 0 ***

Descoperă un apartament deosebit, situat la parterul unui imobil boutique cu doar două niveluri, în inima Cartierului Arhitecților – una dintre cele mai apreciate zone rezidențiale din Sibiu.

Acest spațiu modern este ideal pentru cupluri, familii tinere sau investitori care caută confort, intimitate și un stil de viață rafinat.

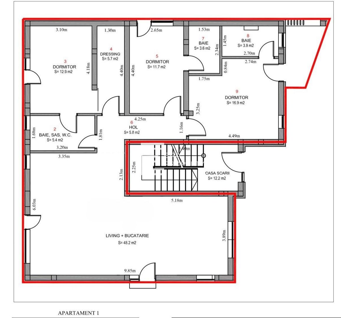
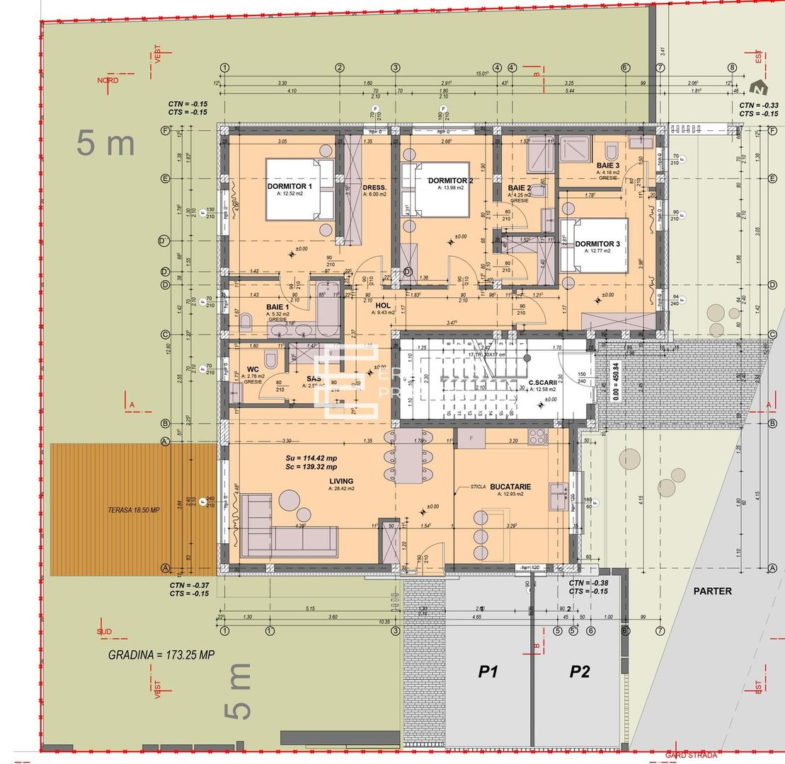
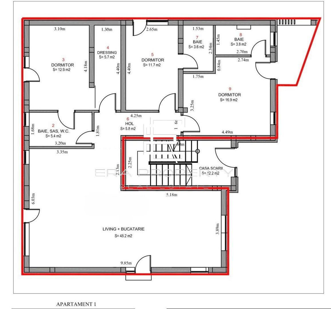
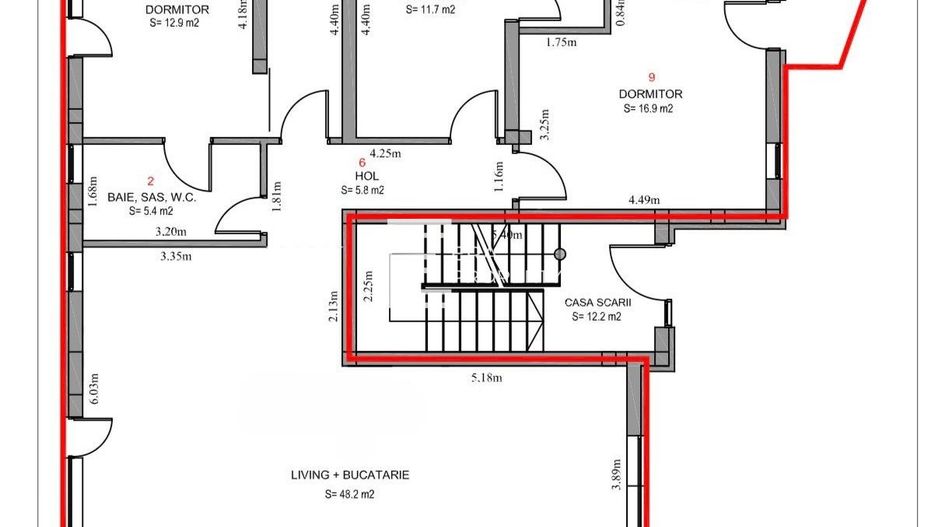
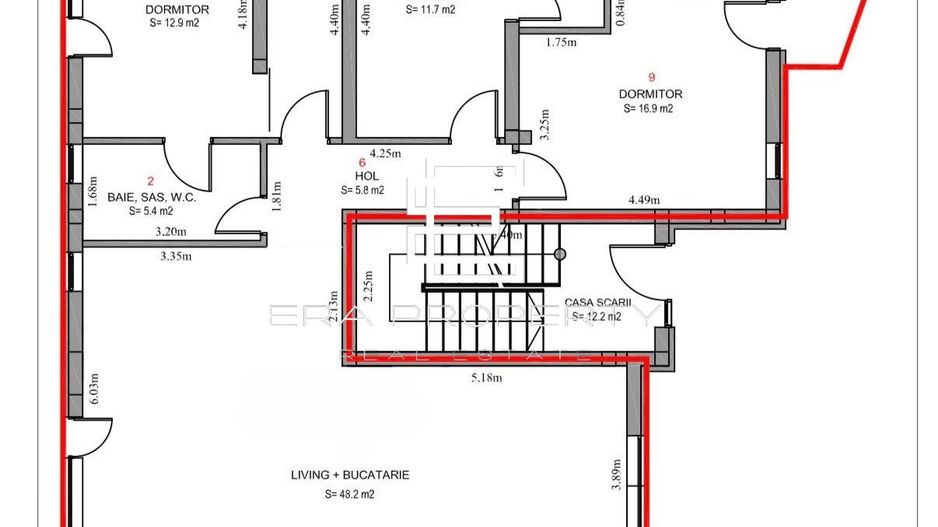
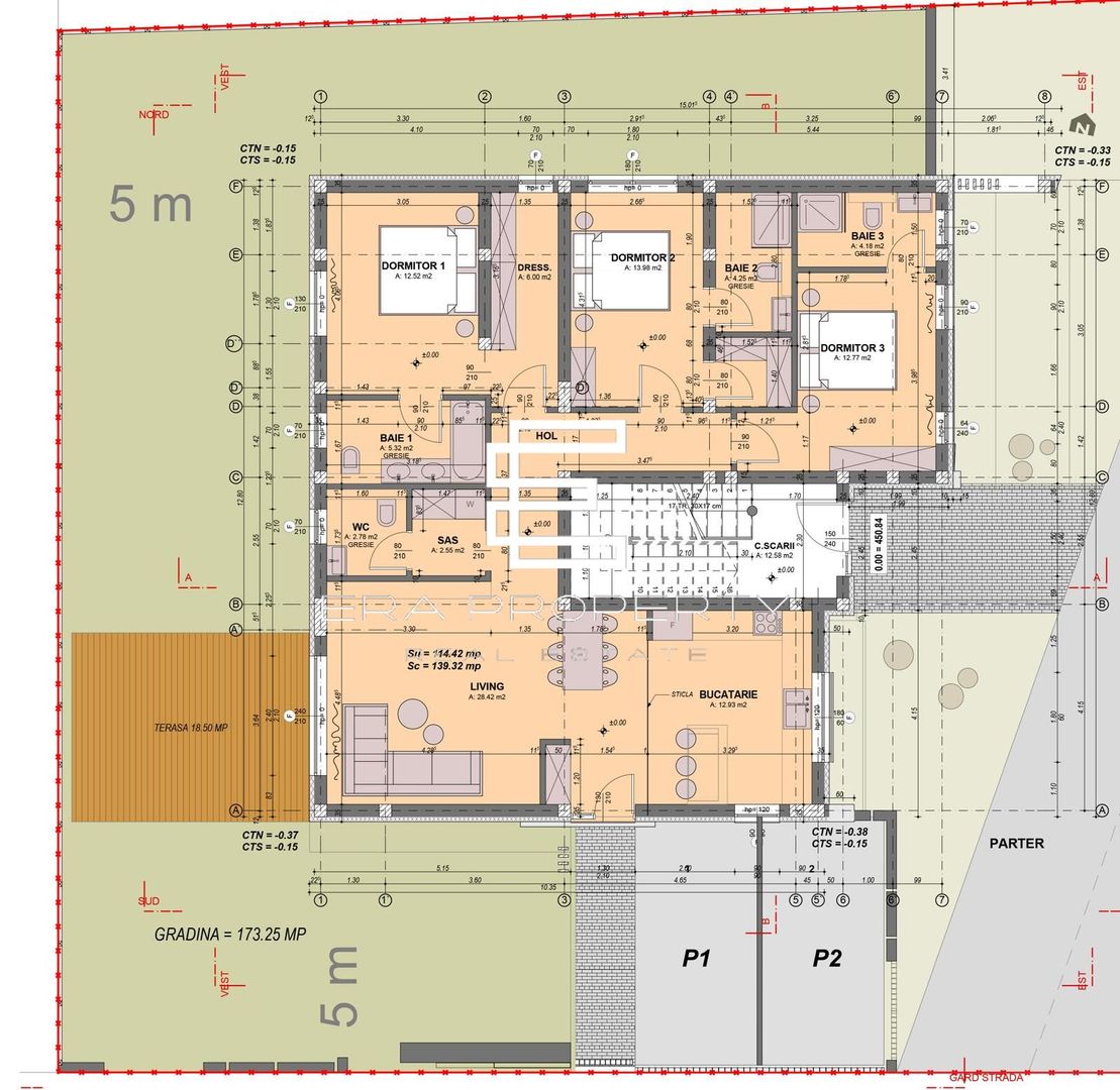
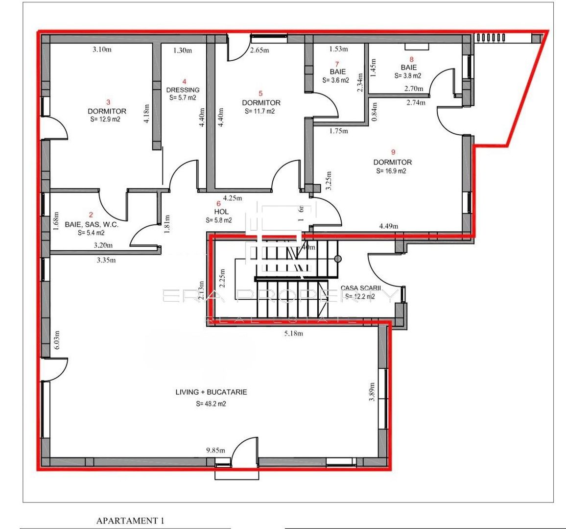
-Suprafață utilă: 115 mp

-Terasă: 18,5 mp

-Grădină: 200 mp

-Compartimentare inteligentă:

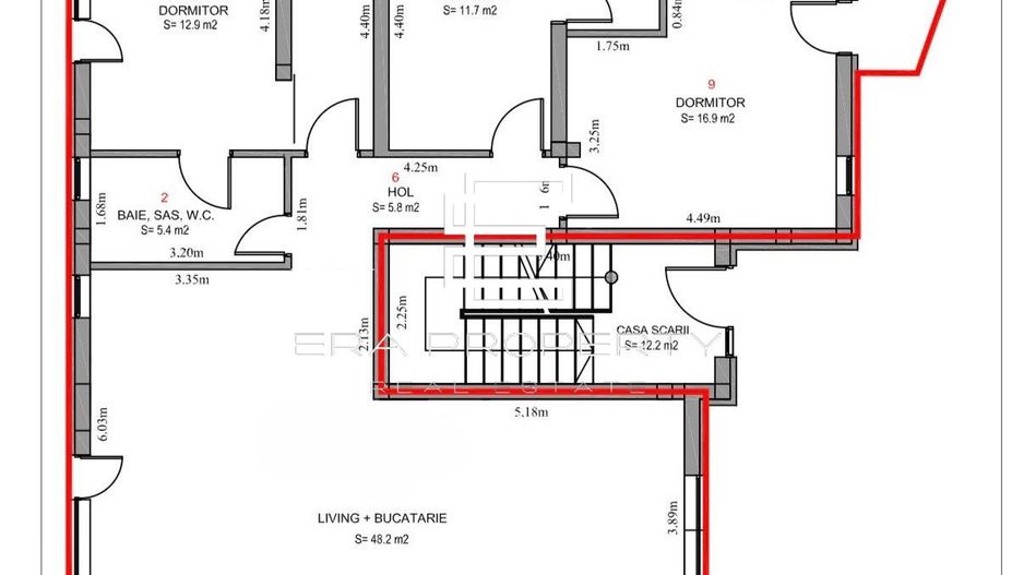
Living generos cu bucătărie open space (cu posibilitate de închidere)

2 dormitoare cu dressing și baie proprie

1 dormitor suplimentar, de asemenea cu baie proprie

Grup sanitar de serviciu

Spațiu de depozitare

Terasă cu acces direct din living

Dotări și finisaje premium

Intrare separată – pentru intimitate deplină

-Grădină privată de 200 mp – perfectă pentru relaxare și activități în aer liber

-2 locuri de parcare incluse în preț

-Izolație cu vată bazaltică de 10 cm – eficiență termică superioară

-Balustrade din sticlă securizată – design modern și siguranță sporită

-Sistem de supraveghere video 24/7 – protecție permanentă

-Încălzire în pardoseală cu termostat individual în fiecare cameră

-Ferestre tripan premium (3 foi de sticlă, 3 garnituri) – izolare fonică și termică excelentă

-Centrală termică Bosch în condensare – eficiență energetică ridicată

-Iluminat exterior ambiental

-3 băi complet finisate și mobilate

Finisaje de înaltă calitate, alese pentru un design elegant și rafinat

Alte beneficii

Acces auto cu poartă automatizată

Sistem videointerfon

Comunitate restrânsă, liniștită și sigură

Clădire cu regim mic de înălțime

Este un apartament modern și eficient, situat într-un bloc nou cu regim mic de înălțime, într-o comunitate restrânsă, perfect pentru cei care apreciază liniștea și confortul.

Pret: 204000 euro+ tva 21%

Citește mai mult

  • Tip apartament
    Apartament
  • Compartimentare
    Decomandat
  • Număr camere
    4
  • Dormitoare
    3
  • Număr bucătării
    1
  • Număr băi
    4
  • Geam la baie
    Da
  • Etaj
    Parter
  • Suprafață utilă
    115 mp
  • Suprafață construită
    140 mp
  • Suprafață terasă
    18.5 mp
  • Suprafață curte
    200 mp
  • Disponibilitate
    Imediat
  • Confort
    1
  • Stare interior
    Semifinisat
  • Anul finisării
    2025
  • Număr terase
    1
  • Număr locuri parcare
    2
  • Imobil
    Bloc de apart.
  • Stadiu construcție
    În construcție
  • An construcție
    2025
  • Construcție nouă
    Da
  • Tip construcție
    Cărămidă
  • Număr etaje clădire
    2

Facilități

Apă
Canalizare
CATV
Centrală proprie
Curent
Curte
Gaz
Grădină proprie
Iluminat stradal
Încălzire prin pardoseală
Internet
Izolație exterioară
Mijloace de transport în comun
Străzi asfaltate
Telefon
Vedere panoramică
Anamaria Vulcu - ERA Property
Anamaria Vulcu
Broker imobiliar

0772298572


Solicită chiar acum o vizionare
Nume
Telefon
Email
Sună acum Solicită vizionare
Necesare:

Site-ul nu poate funcționa corect fără aceste cookie-uri. Vezi cookie-urile

Statistică:

Strângem statistici anonime despre voi, vizitatorii unici, pentru a vă îmbunătăți experiența dumneavoastră. Vezi cookie-urile

Marketing:

Pentru a ne promova mai eficient serviciile noastre, folosim cookies pentru a vă identifica și a vă oferi proprietăți și servicii personalizate. Vezi cookie-urile

Acest site folosește cookies, află detalii. Alege ce tipuri de cookies dorești să permitem: