ID CP2287554

Apartament 3 camere 73 mp , Doamna Stanca, Selimbar

ID CP2287554

141,570 € TVA inclus

Apartament cu 3 camere de vânzare
Selimbar
73.05 mp
2024

Apartament 3 camere – Confort și Funcționalitate

***COMISION 0***

Acest apartament spațios și bine compartimentat este situat într-un ansamblu rezidențial modern, aflat într-una dintre cele mai căutate zone din Șelimbăr – strada Doamna Stanca, în apropierea magazinului LIDL și a centrului comercial Shopping City.

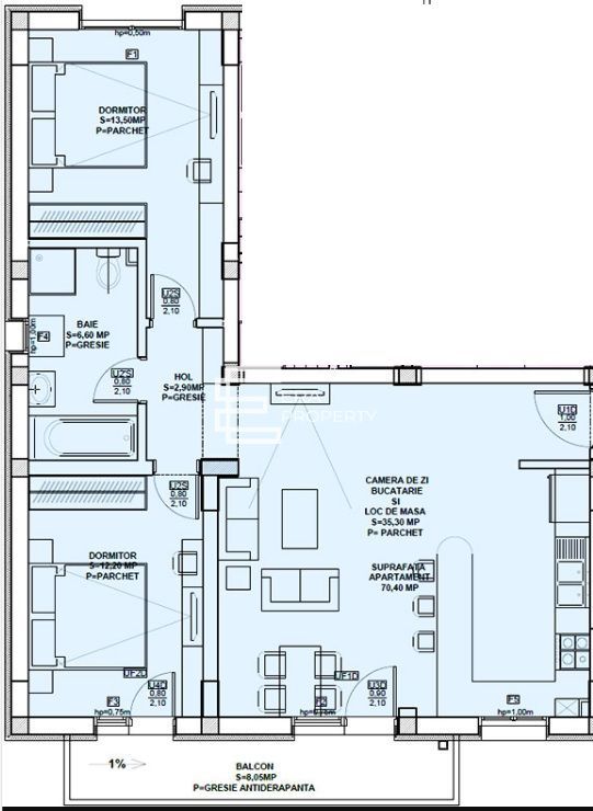
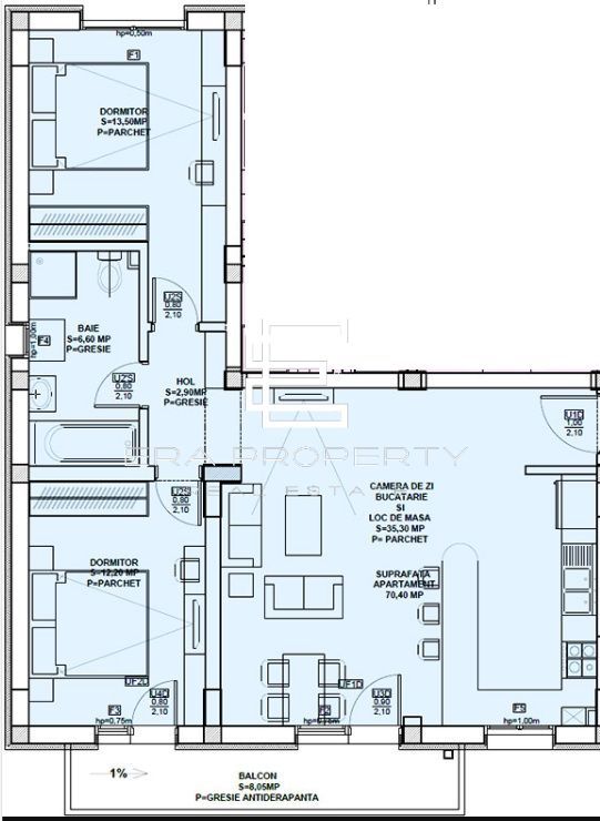
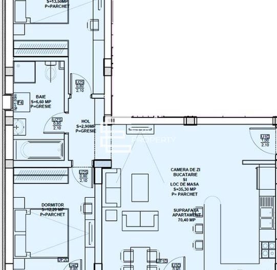
Locuința are o suprafață utilă de 73.05 mp și dispune de un balcon generos de 6.8 mp, cu acces atât din living, cât și din unul dintre dormitoare.

Compartimentarea este practică și eficientă: living cu bucătărie open space, două dormitoare, două băi (una cu geam), o cămară și un hol de acces bine dimensionat.

Imobilul are regim redus de înălțime (P+3E), cu doar trei apartamente pe etaj, ceea ce oferă mai multă intimitate și liniște.

Apartamentul se predă la stadiul de alb, cu centrală termică proprie, încălzire în pardoseală și toate instalațiile realizate. Exteriorul blocului și casa scării sunt predate „la cheie”. La cerere, locuința se poate finisa complet, cu materiale alese de viitorul proprietar, într-un buget prestabilit.

.În preț este inclus un loc de parcare, cu posibilitatea achiziționării unuia suplimentar.

Se acceptă plata cash sau credit ipotecar, cu un avans minim de 15%.

Zona oferă acces rapid către punctele de interes ale orașului: Rahova, Mihai Viteazul, Cedonia, școli, grădinițe, supermarketuri, transport în comun.

Pret: 141 570 EURO- tva inclus -LA ALB

Tel: 0772 985 572

𝐎𝐍𝐄 𝐑𝐞𝐬𝐢𝐝𝐞𝐧𝐜𝐞 este un ansamblu rezidențial nou, format din 8 blocuri (P+3), cu un total de 236 de apartamente cu 2 și 3 camere (55–78 mp utili), proiectate eficient și modern.

📍 Localizare excelentă: în spatele magazinului Supeco, aproape de Piața Rahovei, Pepco, Shopping City

🌿 Spații verzi și relaxare: peste 3.400 mp de spații verzi, loc de joacă, alei pietonale, zone de promenadă

🚗 Facilități complete: 281 locuri de parcare amenajate, acces facil prin pod pietonal

🏔️ Vedere panoramică către munți și oraș

🧱 Calitate în execuție și materiale premium

Ansamblul oferă un cadru ideal pentru locuit sau investiție, cu toate avantajele unei zone în plină dezvoltare.

Citește mai mult

  • Tip apartament
    Apartament
  • Compartimentare
    Decomandat
  • Număr camere
    3
  • Dormitoare
    2
  • Număr bucătării
    1
  • Număr băi
    2
  • Geam la baie
    Da
  • Etaj
    2
  • Suprafață utilă
    73.05 mp
  • Suprafață construită
    85 mp
  • Disponibilitate
    Imediat
  • Confort
    1
  • Stare interior
    Finisat clasic
  • Anul finisării
    2024
  • Număr balcoane
    1
  • Număr locuri parcare
    1
  • Imobil
    Bloc de apart.
  • Stadiu construcție
    În construcție
  • An construcție
    2024
  • Construcție nouă
    Da
  • De la dezvoltator
    Da
  • Tip construcție
    Cărămidă
  • Număr etaje clădire
    3
  • Are pod
    Da

Facilități

Apă
Bucătărie deschisă
Canalizare
CATV
Curent
Gaz
Iluminat stradal
Încălzire prin pardoseală
Internet
Izolație exterioară
Loc de joacă copii
Mijloace de transport în comun
Străzi asfaltate
Telefon
Anamaria Vulcu - ERA Property
Anamaria Vulcu
Broker imobiliar

0772298572


Solicită chiar acum o vizionare
Nume
Telefon
Email
Sună acum Solicită vizionare
Necesare:

Site-ul nu poate funcționa corect fără aceste cookie-uri. Vezi cookie-urile

Statistică:

Strângem statistici anonime despre voi, vizitatorii unici, pentru a vă îmbunătăți experiența dumneavoastră. Vezi cookie-urile

Marketing:

Pentru a ne promova mai eficient serviciile noastre, folosim cookies pentru a vă identifica și a vă oferi proprietăți și servicii personalizate. Vezi cookie-urile

Acest site folosește cookies, află detalii. Alege ce tipuri de cookies dorești să permitem: