ID CP2701774

Penthouse 3 camere cu terasă panoramică – Sibiu, zona Turnișor

ID CP2701774

197,500 € + 21% TVA

Apartament cu 3 camere de vânzare
Turnisor, Sibiu
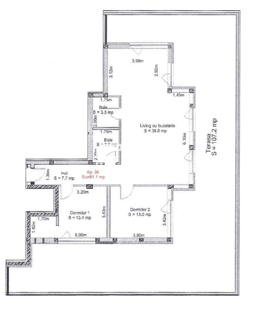
81 mp
2023

Penthouse 3 camere cu terasă panoramică – Sibiu, zona Turnișor

Zona Turnișor | 81 Mp utili + terasa 107 mp | Finisaje moderne | Facilități premium

Descoperă un penthouse spectaculos cu 3 camere, amplasat într-un ansamblu rezidențial modern din zona Turnișor – Sibiu.

Cu o suprafață utilă de 81 mp și o terasă impresionantă de 107 mp ce oferă acces din toate încăperile, acest apartament îmbină confortul interior cu libertatea unui spațiu exterior generos. Finisajele moderne, facilitățile premium și proximitatea față de punctele importante ale orașului îl transformă într-o alegere ideală pentru cei care își doresc un stil de viață exclusivist și sigur.

- Compartimentare eficienta: hol acces-7.7 mp, living + bucătărie open space – 39.6 mp; dormitor 1– 13.4mp, dormitor 2-13 mp, baie- 3.9 mp, baie 2- 3.5 mp, terasa 107 mp cu acces din toate incaperile.

*Facilități ale ansamblului:

Spații verzi, zonă de agrement și zonă BBQ lângă pârâu

Loc de joacă pentru copii

Zonă fitness și sport în aer liber

2 căi de acces: una către zona industrială/Aeroport, cealaltă către Str. Ogorului

Bariere de acces – acces controlat doar pentru locatari

Standuri pentru biciclete

Lifturi și finisaje premium în spațiile comune

Ansamblul dispune de o Asociație de Proprietari profesionist gestionată, care se ocupă de întreținerea spațiilor comune și a zonelor verzi, asigurând un aspect curat, modern și bine organizat.

Apartamentul se predă la stadiul de alb avansat cu: prize și întrerupătoare, centrală termică Viessmann,incălzire în pardoseală (sistem Tece),termostat în fiecare cameră, rulouri electrice la dormitoare, pereți gletuiți și pregătiți pentru finisare.

-Parcare (contra cost):

Parcare supraterană – 5.084 €

Parcare subterană – 10.168 €

Opțional: stație de încărcare pentru mașini electrice.

- Certificat energetic (conform proiect): Clasa energetică: B

-Termen de predare: toamna 2025

Preț: € 197500 + 21% TVA

𝐆𝐫𝐞𝐞𝐧 𝐇𝐢𝐥𝐥 𝐑𝐞𝐬𝐢𝐝𝐞𝐧𝐜𝐞 este un ansamblu rezidențial modern situat în vestul orașului, zona Turnișor, cu acces rapid către Aeroport, Metro, Autostradă, școli, grădinițe și alte puncte de interes.

Proiectul cuprinde 7 blocuri cu 5 etaje, oferind apartamente de 2, 3 și 4 camere (tip penthouse), cu vedere panoramică spre Munții Făgăraș.

Facilități:

Parcare și boxă subterană

Acces cu barieră, video-interfon

Lift, casa scării cu marmură

Zonă fitness, loc de joacă, spații verzi, zonă BBQ

Fiecare apartament include loc de parcare și este atent compartimentat pentru confort maxim. Ansamblul este administrat profesionist, cu accent pe curățenie și întreținere impecabilă.

Citește mai mult

  • Tip apartament
    Penthouse
  • Compartimentare
    Decomandat
  • Număr camere
    3
  • Dormitoare
    2
  • Număr bucătării
    1
  • Număr băi
    2
  • Etaj
    3
  • Suprafață utilă
    81 mp
  • Suprafață terasă
    107 mp
  • Disponibilitate
    Imediat
  • Confort
    1
  • Stare interior
    Semifinisat
  • Anul finisării
    2025
  • Număr terase
    1
  • Imobil
    Bloc de apart.
  • Stadiu construcție
    În construcție
  • An construcție
    2023
  • Construcție nouă
    Da
  • De la dezvoltator
    Da
  • Tip construcție
    Cărămidă
  • Număr etaje clădire
    3
  • Număr etaje retrase
    1

Facilități

Apă
Canalizare
CATV
Curent
Gaz
Iluminat stradal
Internet
Mijloace de transport în comun
Străzi asfaltate
Telefon
Anamaria Vulcu - ERA Property
Anamaria Vulcu
Broker imobiliar

0772298572


Solicită chiar acum o vizionare
Nume
Telefon
Email
Sună acum Solicită vizionare
Necesare:

Site-ul nu poate funcționa corect fără aceste cookie-uri. Vezi cookie-urile

Statistică:

Strângem statistici anonime despre voi, vizitatorii unici, pentru a vă îmbunătăți experiența dumneavoastră. Vezi cookie-urile

Marketing:

Pentru a ne promova mai eficient serviciile noastre, folosim cookies pentru a vă identifica și a vă oferi proprietăți și servicii personalizate. Vezi cookie-urile

Acest site folosește cookies, află detalii. Alege ce tipuri de cookies dorești să permitem: