ID CP2586369

Apartament cu 2 camere, rulouri electrice, încălzire pardoseală, Sibiu

ID CP2586369

122,100 € + 21% TVA

Apartament cu 2 camere de vânzare
Turnisor, Sibiu
47.1 mp
2023

Apartament 2 camere balcon generos, finisaje moderne, zonă liniștită Sibiu

Zona Turnișor | 47.1 mp utili + balcon 10.3 mp | Finisaje moderne | Facilități premium

Situat într-un ansamblu rezidențial nou și modern, Green Hill oferă un stil de viață confortabil, sigur și conectat, în zona de vest a Sibiului – Turnișor, cu acces rapid către zona industrială, Aeroport, autostradă și centrul orașului.

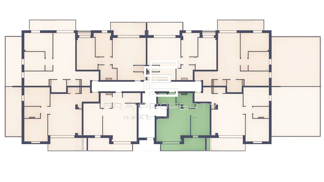
Suprafață utilă totală: 47.1 mp

- Compartimentare: bucatarie + Living - 23.2 mp; dormitor - 13,8 mp; baie - 5.4 mp; hol - 4.7 mp.

-Suprafata balcon - 10,3 mp

*Facilități ale ansamblului:

Spații verzi, zonă de agrement și zonă BBQ lângă pârâu

Loc de joacă pentru copii

Zonă fitness și sport în aer liber

2 căi de acces: una către zona industrială/Aeroport, cealaltă către Str. Ogorului

Bariere de acces – acces controlat doar pentru locatari

Standuri pentru biciclete

Lifturi și finisaje premium în spațiile comune

Ansamblul dispune de o Asociație de Proprietari profesionist gestionată, care se ocupă de întreținerea spațiilor comune și a zonelor verzi, asigurând un aspect curat, modern și bine organizat.

Apartamentul se predă la stadiul de alb avansat cu: prize și întrerupătoare, centrală termică Viessmann,incălzire în pardoseală (sistem Tece),termostat în fiecare cameră, rulouri electrice la dormitoare, pereți gletuiți și pregătiți pentru finisare.

Locurile de parcare se achiziționează separat, contra-cost:

Parcare supraterană: 7.000 euro / loc, TVA inclus

Parcare la subsol: 12.000 euro primul loc, TVA inclus

Al doilea loc de parcare la subsol: 15.000 euro, TVA inclus

Opțional: stație de încărcare pentru mașini electrice.

- Certificat energetic (conform proiect): Clasa energetică: B

Pret – 122100€ tva inclus -comision 0

Intabulare estimată: vara 2026

Citește mai mult

  • Tip apartament
    Apartament
  • Compartimentare
    Decomandat
  • Număr camere
    2
  • Dormitoare
    1
  • Număr bucătării
    1
  • Număr băi
    1
  • Etaj
    1
  • Suprafață utilă
    47.1 mp
  • Suprafață construită
    51 mp
  • Disponibilitate
    Imediat
  • Confort
    1
  • Stare interior
    Semifinisat
  • Anul finisării
    2025
  • Număr balcoane
    1
  • Imobil
    Bloc de apart.
  • Stadiu construcție
    În construcție
  • An construcție
    2023
  • Construcție nouă
    Da
  • De la dezvoltator
    Da
  • Tip construcție
    Cărămidă

Facilități

Apă
Bucătărie deschisă
Canalizare
CATV
Curent
Gaz
Iluminat stradal
Încălzire prin pardoseală
Internet
Izolație exterioară
Mijloace de transport în comun
Străzi asfaltate
Telefon
Anamaria Vulcu - ERA Property
Anamaria Vulcu
Broker imobiliar

0772298572


Solicită chiar acum o vizionare
Nume
Telefon
Email
Sună acum Solicită vizionare
Necesare:

Site-ul nu poate funcționa corect fără aceste cookie-uri. Vezi cookie-urile

Statistică:

Strângem statistici anonime despre voi, vizitatorii unici, pentru a vă îmbunătăți experiența dumneavoastră. Vezi cookie-urile

Marketing:

Pentru a ne promova mai eficient serviciile noastre, folosim cookies pentru a vă identifica și a vă oferi proprietăți și servicii personalizate. Vezi cookie-urile

Acest site folosește cookies, află detalii. Alege ce tipuri de cookies dorești să permitem: