ID CP2647706

Apartament 2 camere intabulat, parter înalt, balcon 7 mp | DaVinci Homes

ID CP2647706

110,000 € TVA inclus

Apartament cu 2 camere de vânzare
Cristian
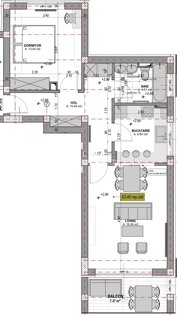
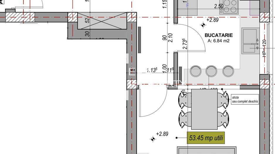
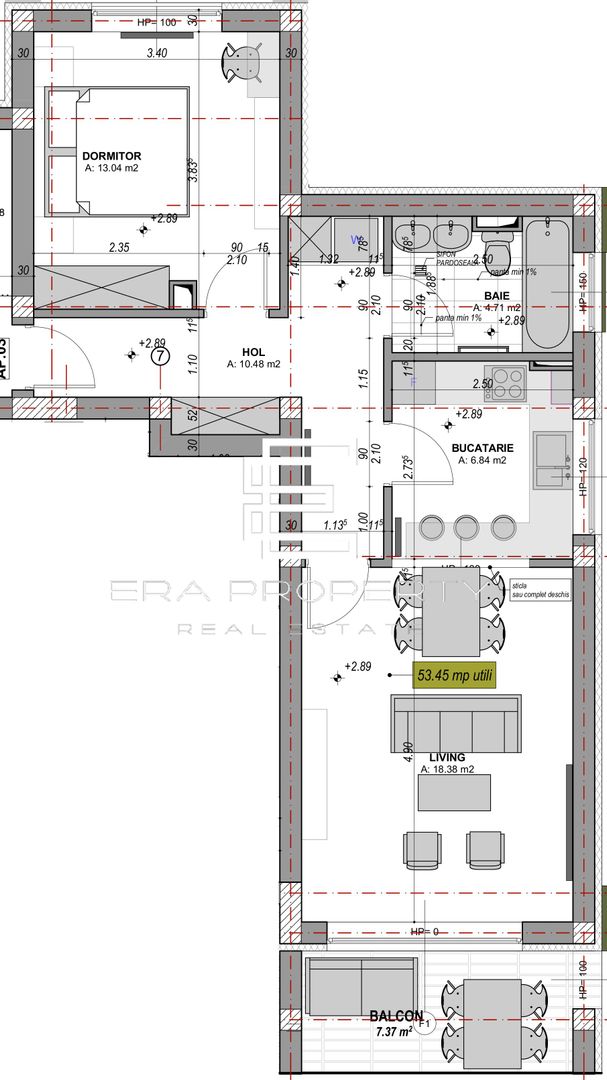
53.45 mp
2023

Apartament nou, intabulat, ideal pentru locuire sau investiție, într-un ansamblu aerisit

𝐂𝐨𝐦𝐢𝐬𝐢𝐨𝐧 𝟎%

Vă propunem spre vânzare un apartament cu 2 camere, semidecomandat, situat în cartierul rezidențial DaVinci Homes, în zona de Vest a orașului Sibiu.

Apartamentul este amplasat la parterul înalt al unui imobil cu regim redus de înălțime, și are o suprafață utilă de aproximativ 𝟓𝟑,𝟒𝟓 𝐦𝐩, la care se adaugă 𝐮𝐧 𝐛𝐚𝐥𝐜𝐨𝐧 𝐝𝐞 𝟕,𝟑𝟕 𝐦𝐩.

Compartimentarea este practică și bine organizată: hol de acces, living, bucătărie separată:, dormitor, baie cu geam de aerisire, balcon.

Apartamentul se predă 𝐟𝐢𝐧𝐢𝐬𝐚𝐭 𝐥𝐚 𝐜𝐡𝐞𝐢𝐞 și poate fi achiziționat atât din surse proprii, cât și prin credit bancar.

𝐂𝐚𝐫𝐚𝐜𝐭𝐞𝐫𝐢𝐬𝐭𝐢𝐜𝐢 𝐚𝐩𝐚𝐫𝐭𝐚𝐦𝐞𝐧𝐭

apartament nou

situat la parter înalt

bucătărie separată

încălzire în pardoseală

loc de parcare inclus

logie cu sticlă securizată

izolație cu vată bazaltică

predare la stadiul de finisat la cheie

Avantaje ansamblu DaVinci Homes

Ansamblul DaVinci Homes oferă un cadru modern și aerisit de locuire, cu 45% spații verzi, locuri de joacă amenajate, alei și drumuri bine organizate, precum și 4 căi de acces către oraș și principalele zone de interes.

Exteriorul vilelor este finisat cu larice siberian și piatră naturală, iar regimul redus de înălțime contribuie la un plus de confort și intimitate.

𝐅𝐨𝐭𝐨𝐠𝐫𝐚𝐟𝐢𝐢𝐥𝐞 𝐬𝐮𝐧𝐭 𝐢𝐧𝐟𝐨𝐫𝐦𝐚𝐭𝐢𝐯𝐞 𝐬̦𝐢 𝐚𝐩𝐚𝐫𝐭̦𝐢𝐧 𝐮𝐧𝐮𝐢 𝐚𝐩𝐚𝐫𝐭𝐚𝐦𝐞𝐧𝐭 𝐬𝐢𝐦𝐢𝐥𝐚𝐫.

Citește mai mult

  • Tip apartament
    Apartament
  • Compartimentare
    Decomandat
  • Număr camere
    2
  • Număr bucătării
    1
  • Număr băi
    1
  • Geam la baie
    Da
  • Etaj
    Parter
  • Suprafață utilă
    53.45 mp
  • Suprafață construită
    62 mp
  • Disponibilitate
    Imediat
  • Orientare
    Sud
  • Confort
    1
  • Stare interior
    Semifinisat
  • Anul finisării
    2023
  • Număr balcoane
    1
  • Număr locuri parcare
    1
  • Imobil
    Bloc de apart.
  • Stadiu construcție
    Finalizată
  • An construcție
    2023
  • Construcție nouă
    Da
  • De la dezvoltator
    Da
  • Tip construcție
    Cărămidă
  • Număr etaje clădire
    2
  • Are pod
    Da

Facilități

Apă
Bucătărie deschisă
Canalizare
CATV
Centrală proprie
Curent
Gaz
Geamuri tripan
Iluminat stradal
Încălzire prin pardoseală
Internet
Izolație exterioară
Mijloace de transport în comun
Rulouri / obloane aluminiu
Rulouri / obloane electrice
Străzi asfaltate
Telefon
Vedere spre munte
Vopsea lavabilă
Anamaria Vulcu - ERA Property
Anamaria Vulcu
Broker imobiliar

0772298572


Solicită chiar acum o vizionare
Nume
Telefon
Email
Sună acum Solicită vizionare
Necesare:

Site-ul nu poate funcționa corect fără aceste cookie-uri. Vezi cookie-urile

Statistică:

Strângem statistici anonime despre voi, vizitatorii unici, pentru a vă îmbunătăți experiența dumneavoastră. Vezi cookie-urile

Marketing:

Pentru a ne promova mai eficient serviciile noastre, folosim cookies pentru a vă identifica și a vă oferi proprietăți și servicii personalizate. Vezi cookie-urile

Acest site folosește cookies, află detalii. Alege ce tipuri de cookies dorești să permitem: